• info@buslerstills.com
  • +380 97 5781 934
  • Пн-Пт: 9:00 - 18:00

Мини
спиртзаводы

Производственные линии по переработке сельскохозяйственного сырья на нейтральный спирт крепостью не менее 96%, который соответствует требованиям внутригосударственных стандартов, фармакопеи или техническим условиям производителя.

Особенности терминологии

Существующая классификация спиртов, в том числе и для водки, отражает их химическую чистоту и концентрацию. В зависимости от задействованого сырья и степени очистки, ГОСТ подразделяет «спирт этиловый ректификованный» на: первого сорта (для производства алкогольных напитков не используется), высшей очистки, «Базис», «Экстра», «Люкс», «Альфа» или «Пшеничная слеза».

Нормы Reg. EU определяют только один вид спирта «ethyl alcohol of agricultural origin», сходный по составу со спиртом «Базис», а COFR«neutral spirit», c ограничением нижнего порога спиртуозности (190° proof) и без указания его химической чистоты. Косвенно, состав американского спирта можно определить по существующим спецификациям на продукты «extra neutral alcohol», «pharma grade», «higt-purity» и др.

Выберите производительность мини спиртзавода

Для нано- и микро- спиртзавода количество производственных отделений сводится к минимуму, так как необходимость в их организации может появиться только в процессе масштабирования бизнеса.

Производство пищевого спирта

Пищевой спирт производят методом брожения натуральных сельскохозяйственных культур, которые содержат крахмал и (или) сахара. Для достижения заданного качества его очищают и концентрируют в специальных тепло-массообменных аппаратах.

Основные этапы включают приёмку и помол зерна, соложение, осахаривание и ферментацию для получения спирта, а также дистилляцию для отделения и очистки этанола. Помимо прочего, в процессе производства получают ценные побочные продукты, такие как сухая барда, используемая в качестве корма для животных.

Задействованные процессы

У Busler Stills Ukraine есть уникальный опыт комплектации высокоэффективных линий производства спирта с применением технологических процессов первичной и последующей обработки сырья до готового продукта:

ПОДГОТОВКА СЫРЬЯ

ФЕРМЕНТАЦИЯ

ДИСТИЛЛЯЦИЯ

РЕКТИФИКАЦИЯ

ДЕГИДРАТАЦИЯ

ОБРАБОТКА НА ЦЕНТРИФУГЕ

ВЫПАРИВАНИЕ

СУШКА

В зависимости от вида сырья и технологической схемы производства, практический выход спирта достигает 81,5–93 % от теоретически возможного.

Этанол

Аппараты и установки

Эспертность Busler Stills Ukraine основана на разработке и производстве технологического оборудования для мини производства этилового спирта, согласно действующего технологического регламента, и (или) по более совершенным схемам получения этанола.

Для небольшого производтва рекомендуем периодическую схему низкотемпературного гидролиза и осахаривания крахмала с помощью ферментов микробиального происхождения (мягкая варка), что исключает необходимость в оборудовании для солодоращения и разваривания крахмала под высоким давлением.

По сравнению с классической схемой, такой подход позволяет снизить расход пара до 40%, уменьшает потери сбраживаемых сахаров, за счёт снижения интенсивности химических реакций, снижает время и количество нагреваемой воды, следовательно, затраты на энергоресурсы минимальны.

Сбраживание осахаренного сусла производим сухими гранулированными дрожжами периодическим или непрерывным способом. Благодаря комплексному подходу к подготовке сырья и подбору оптимальных условий брожения образуется меньшее количество побочных (высшие спирты, эфиры), трудно выводимых при ректификации примесей.

Ферментационные процессы крайне чувствительны к внешним факторам и гигиенические требования к ним высоки. Для точного воспроизведения схемы сбраживания сусла применяем автоматику, что позволяет управлять ходом ферментации и контролировать важные параметры бражки.

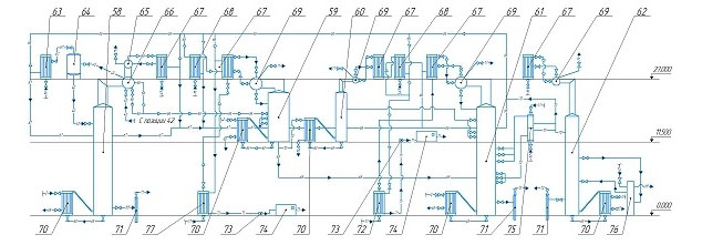
Цех перегонки бражки на мини спиртзаводе, обычно, состоит из двух установок: аппарата для получения спирта-сырца и ректификационной колонны периодического действия для получения конечного продукта. Брагоректификация от 100 дал/сутки может быть реализована по непрерывной схеме косвенного действия.

Усредненные расходы при непрерывном производстве спирта этилового ректификата составляют:

— Расход зерна (крахмал 51% мас.) — 32кг/дал.
— Расход бражки (8% об.)-13,2 дал/дал.
— Удельный расход пара — 32-55 (70) кг/дал
— Удельный расход охлаждающей воды (18,0ºС) — 1,6 куб.м/дал
— Удельный расход питьевой воды — 0,5 куб.м/дал
— Расход электроэнергии — 2,1-4 кВт/дал

Контакты

Наши инженеры доступны для обсуждения Вашего проекта по телефону или электронной почте. Свяжитесь с нами.

+380 (97) 5781 934 (WhatsApp)